Zurück

Dietikon

Die geräumigen Wohnungen in Dietikon sind einem Gärtnermeister und Vater einer Grossfamilie zu verdanken. Das grosszügige Siedlungsgrün ebenso.

1962
Bezug (Kauf 2015 und 2024)
60
Wohnungen
2020
Energetische Sanierung
Gas, Wärmepumpe
Energieträger

Gartensiedlung vor Zürichs Toren

Es war ein Match. 2015 erhielt die BGS den Zuschlag für den Kauf von vier Häusern der heutigen Siedlung Dietikon. Die Erbengemeinschaft und Eigentümerfamilie hatte eine Käuferschaft gesucht, welche die Liegenschaft mieterfreundlich und nachhaltig bewirtschaften würde. In der BGS mit ihrer genossenschaftlichen Ausrichtung fand sie die Käuferin ihres Vertrauens. 2025 konnte die BGS die letzte Liegenschaft von der Erbengemeinschaft in Dietikon erwerben – ein weiterer Vertrauensbeweis seitens der vormaligen Eigentümerfamilie. Erbauer der grünen Siedlung aus den frühen 60er-Jahren ist der Gärtnermeister Baumgartner. Ihm sind die grosszügigen Wohnungen und der ebenso grosszügige Umschwung zu verdanken. 2020 entschloss sich die BGS, die Siedlung energetisch zu sanieren. Im gleichen Zug frischte sie den Umschwung und den Gemeinschaftsraum auf. Dabei durften sich auch die Bewohnenden einbringen. Dies hat der Siedlung einen neuen Grillplatz, einen Naschgarten und eine neue Ausstattung des Gemeinschaftsraums beschert. Apropos Gemeinschaft: Die Siedlungsgruppe Aktive Dietiker und eine Seniorengruppe helfen mit, das gutnachbarschaftliche Zusammenleben und die Gemeinschaft vor Ort zu stärken.

Angebot

  • Bastelräume
  • Gemeinschaftsraum
  • Gartenpavillon
  • Gewerberäume
  • Garagen/Parkplätze
  • Spielplatz
  • Aktive Gruppen: Aktive Dietiker, Seniorengruppe

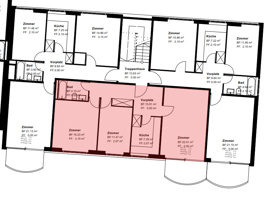
Wohnungsspiegel

  • 3 2-Zimmer-Wohnungen 54 m²
  • 14 2,5-Zimmer-Wohnungen 55 bis 64 m²
  • 21 3-Zimmer-Wohnungen 68 bis 72 m²
  • 7 3,5-Zimmer-Wohnungen 75 m²
  • 5 4-Zimmer-Wohnungen 85 m²
  • 10 4,5-Zimmer-Wohnungen 87 m²

Aktuelles zu Limmattal

E-Mobilität

Lademöglichkeiten für E-Mobilität sind auch in der BGS gefragt. Deshalb treiben wir den Ausbau für Anschlussmöglichkeiten voran.

Mieterservice

Bei unserem neuen Mieterservice finden Sie viele Informationen rund ums Wohnen gebündelt an einem Ort.

Gemeinschaftsraum Dietikon

Der Gemeinschaftsraum in unserer Siedlung in Dietikon ist frisch renoviert und bietet Platz für bis zu 28 Personen.