3-Zimmer-Wohnung

Zielackerstrasse 8, 8953 Dietikon

Zurück zur Newsübersicht

Wir vermieten in unserer Siedlung Dietikon eine 3-Zimmer-Wohnung per 16. März 2026 oder nach Vereinbarung.

Die Siedlung wurde in den 60er-Jahren vom Gärtnermeister Baumgartner erbaut und im Jahr 2015 von der Baugenossenschaft Sonnengarten gekauft. Fünf Jahre später haben wir die Häuser energetisch saniert.

Die Wohnungen und der Aussenraum mit Grillplatz und Naschgarten sind grosszügig gestaltet. Bus-, Tramhaltestelle und der Bahnhof Glanzenberg sind in Gehdistanz erreichbar. Auch das Schulhaus und der Kindergarten befinden sich in der Nähe.

Für diese Wohnung muss ein Anteilkapital von CHF 6'000 einbezahlt werden.

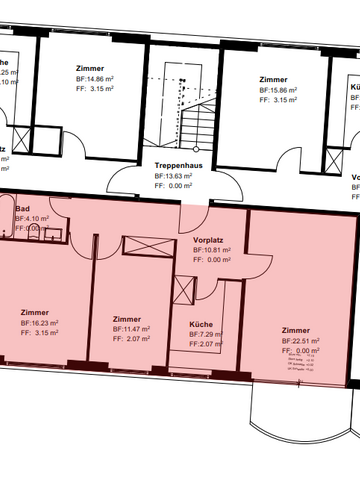
Bei den Fotos handelt es sich um Referenzbilder einer anderen Wohnung in der Siedlung.

Miete

Bruttomiete (inkl. NK): CHF 1'307.50 pro Monat
Nettomiete (exkl. NK): CHF 1'137 pro Monat
Nebenkosten: CHF 171.50 pro Monat

Details

Anzahl Zimmer: 3
Etage: EG
Wohnfläche: 72 m2
Baujahr: 1962
Ausstattung: 2 Schlafzimmer, Wohnzimmer mit Gartensitzplatz, Bad mit Badewanne, Einbauschrank im Korridor, Kellerabteil, Waschküche zur Mitbenutzung
Bezugstermin 16. März 2026
Anteilkapital 6'000 CHF
Mindestbelegung: 2 Personen
Maximalbelegung: 4 Personen
Weitere Bemerkungen / Hinweise: Es sind keine Hunde erlaubt in dieser Siedlung. Katzen dürfen nur in der Wohnung gehalten werden.

Auf Wunsch installieren wir einen Geschirrspüler gegen einen Aufpreis von CHF 20 pro Monat.

Zurück zur Newsübersicht

Checkliste

  • Betreibungsauszug dabei?
  • Einkommensnachweis hochgeladen?
  • An die Ausweise aller Personen gedacht?
  • Motivationsschreiben verfasst?

Bewerbung einreichen

Hauptmieter:in
dd.mm.yyy
Weiterer Vertragspartner:in
dd.mm.yyy
Weitere Angaben
Referenz Vermieter:in
Referenz einholen möglich:
Dokumente
nicht älter als 3 Monate, bei Wohnortwechsel innerhalb der letzten 3 Jahre, rückwirkend von allen Wohnorten.
z.B. Lohnabrechnung der letzten drei Monate, Nachweis Sozialhilfe, AHV oder letzte defintive Steuererklärung bei Selbständigkeit usw.
ID, Pass oder Ausländeruasuweis
kurzes Motivationsschreiben
Bemerkung
Bitte rechnen Sie 2 plus 7.

Unsere Siedlungen

Albisrieden

Bitte Text ergänzen: Lorem ipsum dolor sit amet consectetur. Semper morbi lacinia nec consequat gravida ultricies. Sed elementum sit etiam netus at risus sit pretium convallis.

Altstetten

Unsere Liegenschaft in Zürich Altstetten hat eine betriebsame Seite zur Altstetterstrasse hin und eine ruhige zum grünen Hof. Sie liegt in Gehdistanz zum Lindenplatz und zum Bahnhof Altstetten.

Höngg

Bitte Text ergänzen: Lorem ipsum dolor sit amet consectetur. Semper morbi lacinia nec consequat gravida ultricies. Sed elementum sit etiam netus at risus sit pretium convallis.

Limmattal

Bitte Text ergänzen: Lorem ipsum dolor sit amet consectetur. Semper morbi lacinia nec consequat gravida ultricies. Sed elementum sit etiam netus at risus sit pretium convallis.